Your privacy is important to us. This website uses cookies to enhance user experience and to analyze performance and traffic on our website. By using this website, you acknowledge the real-time collection, storage, use, and disclosure of information on your device or provided by you (such as mouse movements and clicks). We may disclose such information about your use of our website with our social media, advertising and analytics partners. Visit our Privacy Policy and California Privacy Disclosure for more information on such sharing.

Log In

Our Brands

Helpful Tools

Search

Explore Cedar Creek Cottage

Home > Cedar Creek > Cedar Creek Cottage
Cedar Creek Cottage RVs

Explore Cedar Creek Cottage

Cedar Creek Cottage Destination Trailers

Cedar Creek is dedicated to enhancing the joy of the outdoors and your peace of mind, by building better quality recreational vehicles designed to withstand rugged road conditions and extreme temperatures. When the destination, not the journey is your dream, consider an RV designed with you in mind.

Cedar Creek Cottage Exterior Image
Follow Cedar Creek Cottage on Social Media:

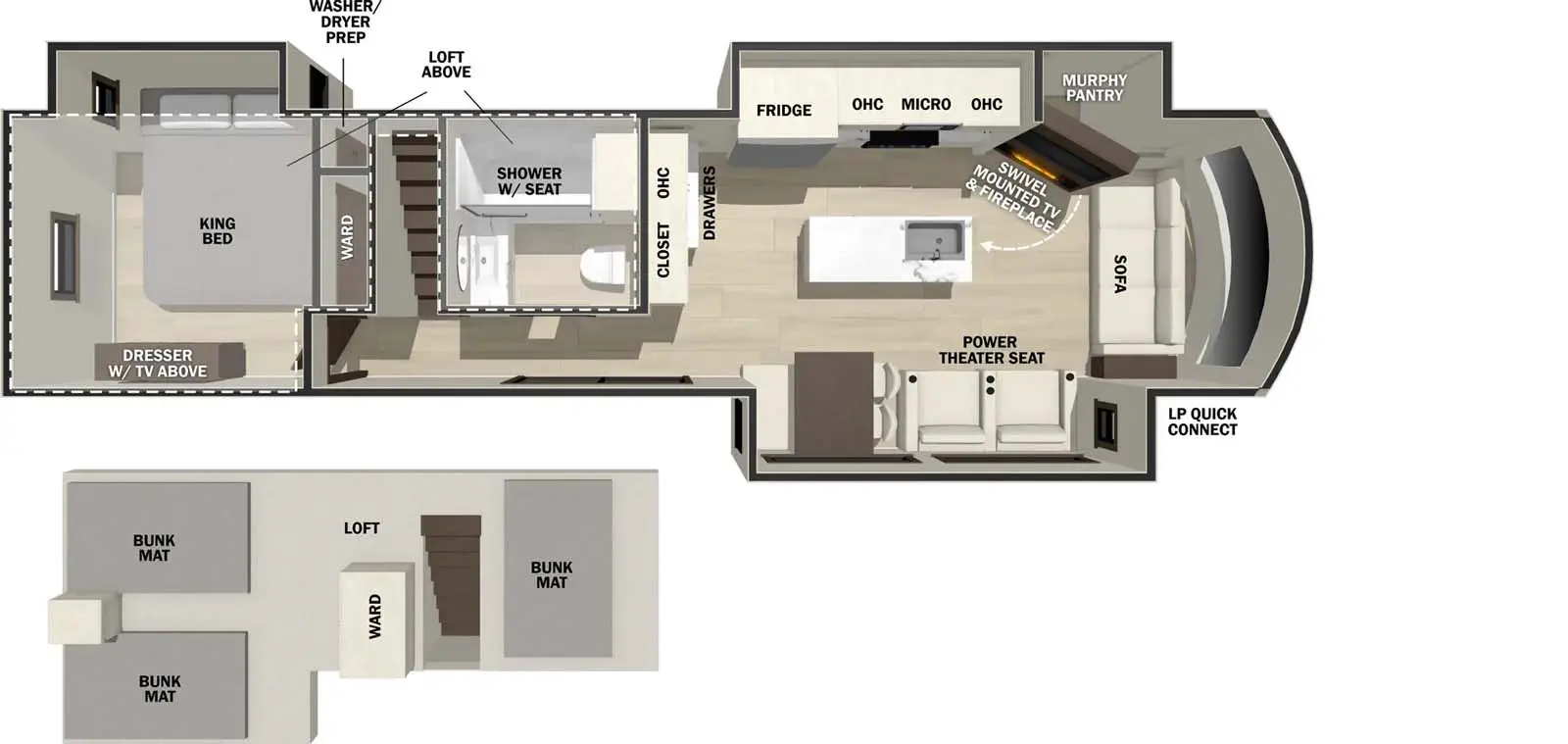
2026 Cedar Creek Cottage Floorplans

Cottage Destination Trailers

2026 Cedar Creek Cottage Features & Options

    • 101" Wide Body Frame
    • “True” Gelcoat Exterior (The Best of the Best in Exteriors)
    • Cedar Creek’s Famous All Aluminum Superstructure on 16" Centers or less
    • 3M® Bonded Sidewalls—Resilient, they grow stronger with age. They also have outstanding resistance to UV, heat, cold, moisture, oils, gasoline, and highway chemicals, which creates a bond that cannot delaminate with time.
    • New 3" Wall with R11 Insulation
    • TT only (2) 7000# Axles
    • 4' x 6' ABS, Ribbed, Removable Underbelly Panels
    • AlphaPly TPO Roof Membrane featuring a Lifetime Warranty - 40% Thicker
    • Suburban ST-60 60,000 BTU Tankless Water Heater
    • 12-Volt Heating Pads on All Black, Grey, & Fresh Water Tanks
    • Electric Awning with LED Night Lights
    • New 80" Tall, Dual Pane Patio Door
    • Individual Shut Off Valves - Kitchen and Bathroom
    • New Waterproof, Bug-Proof Vixenite Slide Room floor panels
    • New 3 Coleman MACH 8 Energy Saver 15,000 BTU Air Conditioners
    • New Suburban ST-60 60,000 BTU Tankless Water Heater
    • New Fenderskirt with pop rivets
    • One Year of ™ RV Roadside Assistance
    • Free Membership to Forest River Owners Group F.R.O.G.
    • 50" Smart Television w/Swing Arm
    • 32" Smart Television in the BR
    • 12v Bluetooth Stereo Speaker
    • New Travelfi™ Pay as you go internet
    • 20 Cu. Ft. Stainless Steel, 110v Refrigerator (starting 6/6/25)
    • 3 Burner Gas Oven with Pull-Out Pan Drawer
    • Vixeinite™ Flush Floor Slides in Kitchen and Living Area
    • Flush Floor Slides in Kitchen and Living Area
    • Residential-Style Kitchen Island with Solid Surface Counter with Flush Mount, Stainless Steel, Work Station Sink
    • Murphy Pantry
    • Residential-Style Dovetail, Self-Closing Drawers, and Hidden Hinge Cabinet Doors
    • Stainless Steel, 30" Over the Range Microwave
    • Cutting Board Drawer with Cut-out Trash Funnel
    • Power Fan with Rain Sensor Override in Kitchen
    • Vinyl Floor Covering
    • Dining table with (2) chairs, Storage Ottoman, Table Extension, and Hidden Silverware Drawer
    • New “Dual Pane” Square Frameless Windows with Reflective Integrated Shade & Screens
    • New Single Window, Fiberglass Cap with Electric Sidewinder Blackout Shade (W/A)
    • New 52" Ceiling Fan in the Living room
    • Power Theater Seating with USB charging ports (40CCK, 40CRS, 40CDL)
    • Luxury Hide-a-Bed Sofa W/A or “L” Sofa with W/A
    • 48" x 30" One Piece, Fiberglass Shower with glass doors, and Upgraded Shower Head
    • Large Bath Vanity with Solid Surface Countertop (Where Applicable)
    • 18" High Porcelain Toilet with Top Circular Flush System
    • Extra Storage for Linens
    • LED Night Lighting under the Vanity
    • Residential-Style Headboard with Luxurious Bedding Décor
    • Individual Reading Lighting above the Bed
    • USB Ports
    • Standard 72 x 80 King Bed
    • Flip-Up Dresser Top with Hidden Storage
    • Prepped for an Optional Washer and Dryer
    • 12V Motion lighting in the Closet
    • 12' Power Awning on Dining Slide
    • Slide-Out Awning Toppers
    • Fisher / Paykel Dishwasher Drawer in the Island
    • Heat Pump
    • Splendide Washer / Dryer
    • 4 Sets of Stabilizer Jacks (Total of 8)

Cedar Creek Cottage Update Alerts

Please sign up below if you would like to receive notifications when we make updates to this brand. Or, if you only want updates on a particular floorplan, you can select to be updated on each one individually.